消防系统安装规范及质量要求
消火栓系统安装质量要求:
GB50242-2002:4.3.1室内消火栓系统安装完成后应取吊顶层《或水箱间内)试验消火栓和首层取二处消火栓做试射试验,达到设计要求为合格。
GB50242-2002:4.3.2安装消火栓水龙带,水龙带与水枪和快速接头绑扎好后,应根据箱内构造将水龙带挂放在箱内的挂钉、托盘或支架上。
GB50242-2002:9.3.4室外消火栓和消防水泵接合器的各项安装尺寸应符合设计要求,栓口安装高度允许偏差为±20mm。
GB50242-2002:9.3.5地下式消防水泵接合器顶部进水口或地下式消火栓的顶部出水口与消防井盖底面的距离不得大于400mm,并内应有足够的操作空间,并设爬梯。寒冷地区井内应做防冻?;?。
质量要求:
GB50242-2002:4.3.3箱式消火栓的安装应符合下列规定:
1)栓口应朝外,并不应安装在门轴侧;
2)栓口中心距地面为1.1m,允许偏差±20mm;
3)阀门中心距箱侧面为140mm,距箱后内表面为 100mm,允许偏差土5mm;
4)消火栓箱体安装的垂直度允许偏差为3mm。
GB50242-2002:9.3.6消防水泵接合器的安全阀及止回阀安装位置和方向应正确,阀门启闭应灵活。
GB50242-2002:9.3.3消防水泵接合器和消火栓的位置标志应明显,栓口的位置应方便操作。消防水泵接合器和室外消火栓当采用墙壁式时,如设计未要求,进、出水柱口的中心安装高度距地面应为1.10m,其上方应设有防坠落物打击的措施。
消防器材(喷淋):
喷淋系统安装质量要求:
GB50261-2017:5.2.1喷头安装必须在系统试压、冲洗合格后进行。
检查数量:全数检查。
检查方法:检查系统试压、冲洗记录表。
GB50261-2017:5.2.2喷头安装时,不应对喷头进行拆装、改动,并严禁给喷头、隐蔽式喷头的装饰盖板附加任何装饰性涂层。
检查数量:全数检查。
检查方法:观察检查。
GB50261-2017:5.2.3喷头安装应使用专用扳手,严禁利用喷头的框架施??;喷头的框架、溅水盘产生变形或释放原件损伤时,应采用规格、型号相同的喷头更换。
检查数量:全数检查。
检查方法:观察检查。
GB50261-2017:5.2.4安装在易受机械损伤处的喷头,应加设喷头防护罩。
检查数量:全数检查。
检查方法:观察检查。
GB50261-2017:5.2.5喷头安装时,溅水盘与吊顶、门、窗、洞口或障碍物的距离应符合设计要求。
检查数量:抽查20%,且不得少于5处。
检查方法:对照图纸,尺量检查。
GB50261-2017:5.2.7当喷头的公称直径小于10mm时,应在配水干管或配水管上安装过滤器。
检查数量:全数检查。
检查方法:观察检查。
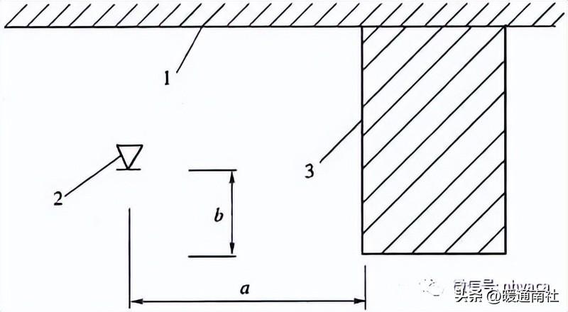
GB50261-2017:5.2.8当喷头溅水盘高于附近梁底或高于宽度小于1.2m的通风管道、排管、桥架腹面时,喷头溅水盘高于梁底、通风管道、排管、桥架腹面的最大垂直距离应符合表5.2.8-1~表5.2.8-9的规定(见图5.2.8)。
检查数量:全数检查。
检查方法:尺量检查。
图5.2.8 喷头与梁等障碍物的距离
1-天花板或屋顶;2-喷头;3-障碍物
表5.2.8-1 喷头溅水盘高于梁底、通风管道腹面的最大垂直距离
(标准直立与下垂喷头)
表5.2.8-2 喷头溅水盘高于梁底、通风管道腹面的最大垂直距离
(边墙型喷头,与障碍物平行)
表5.2.8-3 喷头溅水盘高于梁底、通风管道腹面的最大垂直距离
(边墙型喷头,与障碍物垂直)
表5.2.8-4 喷头溅水盘高于梁底、通风管道腹面的最大垂直距离
(扩大覆盖面直立与下垂喷头)
表5.2.8-5 喷头溅水盘高于梁底、通风管道腹面的最大垂直距离
(扩大覆盖面边墙型喷头,与障碍物平行)
表5.2.8-6 喷头溅水盘高于梁底、通风管道腹面的最大垂直距离
(扩大覆盖面边墙型喷头,与障碍物垂直)
表5.2.8-7 喷头溅水盘高于梁底、通风管道腹面的
最大垂直距离(特殊应用喷头)
表5.2.8-8 喷头溅水盘高于梁底、通风管道腹面的
最大垂直距离(ESFR喷头)
表5.2.8-9 喷头溅水盘高于梁底、通风管道腹面的最大垂直距离
(直立和下垂型家用喷头)
GB50261-2017:5.2.9当梁、通风管道、排管、桥架宽度大于1.2m时,增设的喷头应安装在其腹面以下部位。
检查数量:全数检查。
检查方法:观察检查。
水龙带接头为双卡,水龙带与消火栓和快速接头要用16号铜丝(φ1.6)缠绕2~3道,每道缠紧3~4圈,扎紧后将水龙带和水枪挂在箱内挂架或卷盘上。消防箱正面不允许被装饰物遮挡。
消火栓的水枪充实水柱应通过水力计算确定,且建筑高度不超过100m的高层建筑不应小于10m,建筑高度超过100m 的高层建筑不应小于13m。
