五一风流论坛全国唯一官网查询,全国品茶信息论坛网站 ,一品楼品凤楼论坛最新动态杭州百花坊桑拿论坛 ,xc8866茶楼深圳品茶论坛网

管道布置图识读与绘制

管道布置图的视图:

1.图幅与比例:

1)图幅一般采用A0,比较简单的也可采用A1或A2,图幅不宜加长或加宽。

2)比例常用比例为1:30,也可采用1:25或1:50。

2.视图的配置:

(1)通常采用平面图绘制、若平面图中的局部不够清楚时,可加绘剖视图、向视图、局部放大图和轴测图等一组视图来表达。各图形的下方均需注写“±0.000平面”、“A—A剖视”……等字样。

管道布置图识读与绘制

(2)平面图的配置一般与设备布置图相同,按建筑标高平面分层绘制,将楼板(或层顶)以下的建(构)筑物、设备、管道等全部画出。

(3)对多层建(构)筑物应按层次绘制。当某一层的管道上、下重叠过多,布置较复杂时,可再分上、下两层分别绘制。按照由下而上、由左至右的顺序排列,并在图下标注“ELXX.XXX平面”。

(4)当几套设备的管道布置图完全相同时,允许只绘制一套设备的管道,其余可简化为方框表示,但在总管上应绘出每套支管的接头位置。

视图的表示方法:

(一)建(构)筑物的图示:

(1)与管道布置相关的建(构)筑物应按比例,根据设备布置图以细实线画出基本结构,并标注相应的定位轴线与编号,以及轴线间的距离。

(2)标注建(构)筑物地面、楼面、平台面,以及吊车梁顶面的标高。

(3)按比例用细实线画出电缆托架、电缆沟、仪表和电缆盒、架的位置,标注相应的宽度、底面标高和缆线的走向。

(4)标注各生产车间(分区)、生活间、辅助间的名称等。

(二)设备的图示:

(1)按比例以细实线画出设备的简略外形和基础等,并标注尺寸。

(2)画出设备的中心线及设备上的全部管口,在设备中心线的上方标注设备位号。

(3)管口代号同设备图,以粗实线小正方形表示。标注管口定位尺寸。

(4)标注泵等机械设备的管口定位尺寸及代号。

(5)按比例画出底座并标注定位尺寸。按比例画出基础大小。对于裙座应标注其位置及标记符号。

(6)对于工业炉,还应画出与炉子平台有关的柱、炉子外壳总管箱、风道和烟道的外形。

管道布置图识读与绘制

(三)管道的图示:

采用粗实线绘制。

当公称直径≥400mm或16in时,管道画成双线表示,如果图中大口径管道不多时,则公称直径≥250mm或10in的管道用双线表示,绘成双线时,用中实线(1b/2—2b/3)绘制。

小于200mm的管道采用单线表示。

管道布置图识读与绘制

(1)应根据工艺流程图在适当的位置用箭头表示出相应的物流方向(双线管道箭头画在管道的中心轴线上)。

管道布置图识读与绘制

(2)按规定的图例和比例画出管道及管道上的阀门、管件、管架、管道附件和特殊管件等。

(3)管道公称直径DN≤50mm或2in的弯头,则一律画成直角。≥50mm一律画成圆角。

(4)管道的连接方式

管道布置图识读与绘制

(5)管道转折的表示方法

管道布置图识读与绘制

(6)管道投影发生重叠

管道布置图识读与绘制

(7)管道交叉画法

管道布置图识读与绘制

(8)分析取样口、放空管、排液管的图示

管道布置图识读与绘制

(9)管件、阀门、仪表控制点的图示

管道布置图识读与绘制

管道布置图识读与绘制

液面计、液面报警器、放空、排液和取样点,以及测温点、测压点和其他附属装置上带有管道与阀门的,也应在管道布置图中画出,但尺寸可不必标注。

(10)仪表与检测元件的图示

管道布置图识读与绘制

(11)管道支架的图示

管道布置图识读与绘制

管架的编号方式:

管道布置图识读与绘制

管道三视图的画法:

管道布置图识读与绘制

管道布置图识读与绘制

管道布置图的标注:

(一)建(构)筑物的标注

建筑物在管道布置图中常被用作管道布置的定位基准,因此,在各视图中均应标注出建筑物定位轴线的编号及各定位轴线的间距尺寸,标注方式均与设备布置图相同。

地面、楼面、平台面、梁顶面及吊车等的标高。

(二)设备的标注

设备是管道布置的主要定位基准,设备在图中要标注位号,其位号应与工艺流程图和设备布置图上的一致。

设备主轴中心线的标高。设备定位尺寸。

(三)管道的标注

管道标注的内容:所有管道的定位尺寸、标高、管段编号,并以平面图为主。

管道标注的要求:

1.标注管道定位尺寸

标注基准:建筑物或构筑物的定位轴线、设备中心线、设备支撑点、设备管口中心线、分区界限。

定位尺寸以毫米为单位,标高以米为单位。

管道定位尺寸也可以坐标形式表示。

2.标注代号要求

管道上方的标注内容:介质代号、管道编号、公称直径、管道等级和隔热方式。

管道下方标注内容:管道标高。标注方式有两种:以管道中心线为基准时,可标注“EL XXX.XXX”字样。若以管底为基准时,其标注形式为“BOP ELXX.X X”。

管道编号方法:

主项编号指工程建设项目统一规定的编号。采用两位数字,从01开始。

管道顺序号根据物料类别分类编号,相同类别的物料在同一主项内流向先后为序,按顺序编号。采用两位数字,从01开始。

管道尺寸一律以公称直径标注,以毫米为单位,只注数字,不注单位。

管道布置图识读与绘制

管道等级代号由三个单元组成,按HG20519.38-92的规定编写如下:

管道布置图识读与绘制

管道隔热及隔声代号:

管道布置图识读与绘制

安装坡度要求:

对安装坡度有严格要求的管道,应在管道上方画出细线箭头指出坡向,并写上坡度数字和代号“i”。

当管道倾斜时,应标注工作点的标高字样“WP ELXXX.XXX”并把尺寸线指向可以定位的地方。

管道布置图识读与绘制

4.异径管应标注前后端管子的公称直径,如“DN80/50”或“DN80×50”。水平管道的异径管应以大端定位,螺纹管件或承插管件可以任一端定位。

5.非90°弯道和非90°的支管连接、应标注角度。

管道布置图识读与绘制

在剖面图上的标注:

一般不标注管段的长度尺寸,只标注管道、管件、阀门、过滤器、限流孔板等元件的中心定位尺寸。

管道方向改变,支管和管道上的管件的定位:

在同一区域内,管道的方向有改变时,支管和在管道上的管件位置尺寸应按容器、设备管口或临近管道的中心线来标注。

重复定位情况:

当有管道跨区域通过接续管线连接到另一张管道布置图时,每张图都必须为接续管道定位。

只有在这一情况下,才允许尺寸的重复。

管道号的引出标注:

管道布置图识读与绘制

偏置管的标注:

带有角度的偏置管(平面偏置和空间偏置)和支管,只在水平方向标注线性尺寸,不标注角度尺寸。

特例:当塔器上的管道经过若干平面时,各平面图上均应标注该管道的编号。

若管道有大小或位置的变化,或出现支管与附件时,也应标注管道号。

管道材质变化时:管道材料与等级有变化时,均应按管道仪表流程图的标示在图中逐一标注。

(四)阀门、管件、仪表控制点的标注:

图中管件、阀门、仪表控制点按规定符号画出后。一般不再标注尺寸,具体安装由现场决定。

但对有特殊要求的阀门高度、管件、法兰定位尺寸,必须标注。

有些管件在图中还应标注某些尺寸或说明,非90°角的弯头和非90°的支管连接应标出其角度 。

(五)管架的标注

每一个管架都应编写一个独立的管架号。

管架编号应按管架类别和生根部位的结构分别按序编写,并标注在图中管架符号的附近,或引出标注。

管道布置图识读与绘制

管道布置图识读与绘制

管道布置图识读与绘制

管道布置图识读与绘制

当分区较多时,也可在分区管道平面布置图与立面剖视图的分区边界线框的右下角绘制一粗实线的小矩形框,在框内标注本图的分区号,再另行绘制一张单独的索引图。

管道布置图的绘制:

(一)概括了解

(1)了解厂房大小、层次高低与建筑物、构筑物的结构。

(2)了解设备名称、数量与管口方位,以及在厂房内的布置情况。

(3)了解管道与管道以及管道与设备之间的连接关系和物流走向。

(4)了解车间内与管道布置相关的自动控制、电器仪表等的分布情况。

(二)管道平面布置图的绘制

(1)确定管道布置图分区范围与边界位置。

(2)确定界区内管道布置所需的视图数量与设置方案。

(3)确定绘图比例与图纸幅面。

(4)绘制草图。

(5)根据草图设计开始正式图纸的绘制。

(6)正式管道平面布置图的绘图步骤。

(7)考虑管道布置的合理性。

绘图步骤:

①用细实线画出车间的简要设备布置图,并标注相应定位轴线与编号以及设备的名称与位号。

②按照工艺流程的顺序,先用细实线从左至右按物料分类,逐一画出界区内的相关管线、管件和管架。

③标注管道、管件和管架的定位尺寸、编号及代号。

④绘制方位标,编写附表,注写必要的说明,填写标题栏。

⑤校核与审定图纸,按制图标准加粗相关图线,完成图样。

1)管道位置及间距; 2)冷热管道的布置;

3)管道敷设应有坡度;

4)易燃、易爆、有毒和有腐蚀性物料的管道的敷设;

5)放空管; 6)支管多的管道;

7)集中架空布置,走直线;

8)禁止安装管道区域及地下管道敷设要求;

9)避免出现“气袋”、“口袋”和“盲肠”;

10)阀门的安装; 11)管道与阀重量的支承位置;

12)相近两设备间管道的连接;

13)不锈钢与碳钢管道不应直接接触;

14)管道通过楼板、平台、屋顶或墙面时外套管的安装;

15)全面考虑电缆、电器、照明、仪表、暖气通风等其他管道。

管道布置图识读与绘制

管道布置图的阅读:

1.概括了解,图纸目录和标题栏→浏览一下图纸。

2.详细阅读图纸,掌握车间管道布置的详细数据。

1)了解管道内的物料种类、起点与终点、管道走向,以及与其相连的设备名称、位号与管口位置等。

2)了解管道分支情况,及该管道上安装的仪表、阀门、管件和管架。

3)掌握车间布置的定位尺寸、代号和各种相关的文字标注与说明。

4)深入分析。

5)反复阅读相关图纸,保证每一条管道、每一张图纸均已看到。

3.归纳总结

目的:

1.是否真正读懂了图纸?

2.是否已完全弄清楚车间所有管道的确切安装位置?

3.核查图纸上是否有表达不清楚、表达错误或者遗漏的数据?

4.是否确实有需要改进或完善的设计等?

阅图示例:

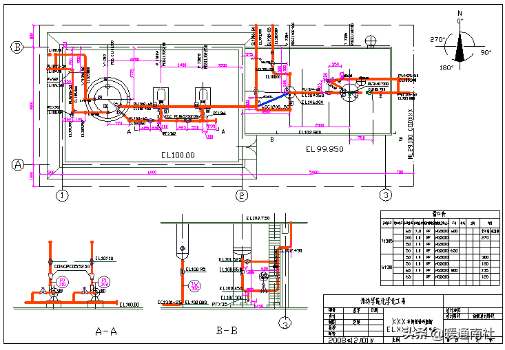
1.对界区情况的初步了解

厂房的朝向、厂房内的设备及位号、室外的设备及位号、室内、外标高、其他视图情况(如A-A视图,B-B视图)、右下角有无分区号,若有需再阅读主项的分区索引和其他的分区布置图。

2.详细阅读与分析

一般先以一个设备为起点,从设备管口找管道、物料走向等;阅读第二台设备;虚线表达在平台以下的管线;综合性的检查与总结。

管道布置图识读与绘制

管道布置图识读与绘制

管段图:

管段图(管道轴测图、管段轴测图或管道空视图):用来表达一个工段或者一个设备至另一个设备(或另一管段)间的一段管道及其附件(管件、阀门、仪表控制点等)的具体配置情况的立体图样。

管道轴测图是按轴测投影原理绘制的,因此立体感较强,便于识读,有利于管段的预制和安装施工。

管段图要求的图示内容:

1.图形,按轴测投影原理绘制的管段及其所附管件、阀门等的图形,符号。

2.标注,管段编号,管段所连设备的位号及其管口号和安装尺寸等。

3.方向标,安装方位的基准

4.技术要求,预制管段的焊接、热处理、试压要求等。

5.材料表,预制管段所需材料名称、尺寸、规格、数量等。

6.标题栏,图名、图号、比例、设计阶段等。

管段图的图示方法:

按正等轴测投影原理、不必按比例绘制,各种阀、管件之间比例及它们在管段中的相对位置要协调。

管道的走向按方向标的规定,与管道布置图上的北向一致。

需要绘制管道轴测图的情况

不绘制管段图的管道,应按HG20519.15-92所规定的格式编写管道表。应在专用的三角形坐标纸上绘制。

1.管段的图示:

(1)管道轴测图中所有管道以单线(粗实线0.9~1.2mm)绘制,法兰、阀、管件用细实线(0.5~0.7mm)画成符号表示,并在管道的适当位置画上表示物料流向的箭头。

(2)当管段与设备相接时,设备一般只用细双点划线画出其管口与中心线,管段与其它管道相接时其它管道也用细双点划线绘出。

(3)管子与管件、阀的连接型式图中均应表示。

(4)在管段图中的弯管,应画成圆角,并标注弯曲半径。标准弯头、R≤1.5D的无缝或冲压弯头可画成直角,并标注焊缝。

(5)管段中一些与坐标轴不平行的斜管,可用细实线矩形框来表示该管的空间位置,有时还需要画出细线立方体来表示管子的空间走向。

(6)管道连接方式的图示与管道布置图相同。

(7)相同材质的管道、管件、阀门等应绘制在一张管段图上。

(8)管段穿越分区界限,分界线应以细点划线画出,并在线外侧注出延续部分所在管道平面布置图的图号(不是空视图)。若管道需横穿主项边界,边界线应以细点划线画出,并在其外侧标注“B.L”字样。

(9)比较复杂的管道,应分成两张或两张以上的空视图绘制,通常以支管连接点、法兰或焊缝为分界点,在界外的管道延续部分可用虚线画出一小段,并标注管道号、管径及空视图图号(但不应重复标注其他管道,避免在今后的修改过程中发生错误)以方便阅图。如果是同一管道在同区内跨越两张管道布置图,而管段图又绘制在一起时,可在图中用一细点划线画出交接点,分别在线的两侧均标注相应布置图的图号,但不必给定位尺寸。

(10)管段穿越楼板、平台和墙面的画法及标注。

管道布置图识读与绘制

(11)在管段图中应表示出在工艺流程图中要求的全部管道等级的分界点,并在分界点的两侧标注管道等级。异径管需分两张空视图图示时,异径管应画在大管径的空视图中,在小管径的空视图中以虚线表示该异径管。

(12)管道两端的偏心异径管的标注,分界点的选择。

(13)若空视图甲的管子与空视图乙的阀门相连时阀门的画法。

2.管件、法兰和阀门的图示:

(1)管件(弯头、三通除外)、法兰和阀门的图示,都应按大致比例以细实线按规定的图例画出,并应画出阀杆与手轮。

(2)如果阀门的连接法兰有安装方位要求,或阀杆不是正坐标轴方向,则必须标注阀杆的方位。

3.仪表与检测元件的图示

(1)压力表、温度表、流量计等仪表与检测元件的图时,与管道布置图要求相同,按标准图利绘制。

(2)安装在管道法兰之间的孔板流量计(或限流孔板)的图示方法如图所示??装辶髁考撇庋构艿姆轿缓拖嘤λ柚惫艿某ざ染右员曜?。如果直管段延伸至另一管道布置图或同区内的另一空视图,其直管段的总长也必须保证。

管段图的尺寸及其标注:

管段图上应标注满足管段预制及安装所需的全部尺寸,一般只注数字,不注单位,可省略去小数。若有几个高压管件直接相连时,总尺寸应标注到小数点后一位。

1.水平管道的标注;

2.垂直管道的标注。

管道布置图识读与绘制

水平管道的标注:

(1)与坐标轴平行的管线和管廊支柱的中心轴线、主项边界线、分区界限,以及连接设备的管口密封面和中心轴线,均可作为管道尺寸标注的基准线。

(2)标注的尺寸线应与管道平行,尺寸界限应为垂直线。

(3)从所定基准线到等径支管、管道改变走向处、图形的接续分界线等处的尺寸。所选基准点应与管道布置图中的一致。

(4)从最邻近的基准线到各个独立的管道元件如孔板法兰、异径管、拆卸用法兰和仪表接口、不等径支管的尺寸标注如图,不允需标注封闭尺寸。

(5)对偏置管的尺寸标注

管道布置图识读与绘制

(6)为标注管道尺寸的需要,应画出相关的设备中心线(不必画出外形),并标注设备位号。与标注管道尺寸无关的设备,可不必画出中心线。

(7)标注管道尺寸应注意细节尺寸,如垫片厚度等,不可漏注,以免影响管段预制的准确程度。对于不能准确计算其长度,或由于土建施工,设备安装可能带来较大误差的部分管段尺寸,可注出其参考尺寸,并在尺寸数字前面加注“~”符号。以便与其它尺寸区别,待施工时实测修正。

(8)安装在管道上的法兰接头,若只有一个垫片(无论哪种类型),其厚度可不予标注,若需安装多个垫片,或者有较高定位要求,需单独标注垫片厚度。

垂直管道的标注:

(1)垂直管道一般不标注长度尺寸,而以水平管道的标高“EL”直接标注在相应的管线的下面。

(2)安装在垂直管道(或水平管道)上的法兰、孔板、“8”字形盲板、均需标注包括垫片在内的总厚度尺寸。

管件、阀门的尺寸标注:

(1)应标注从基准线到阀门或管件法兰端面的距离尺寸。

(2)标准阀门和管件的位置是由管件与管件,或管道与管件直接相接的尺寸所决定的。一般不标注他们的定位尺寸,如果涉及到管道或支管的位置时应予标注。而对某些调节阀和管道过滤器、分离器等特殊管件,需标注它们两端法兰面之间的尺寸。

(3)螺纹与承插焊连接的阀门,在水平管道上应标注到阀门的中心线,在垂直管道上应标注阀门中心线的标高。

(4)所有短半径无缝弯头、管帽、螺纹法兰、螺纹短管、管接头、堵头与活接头等,必须用规定的缩写词在空视图中加以标注,常用缩写词见表。

管架图与管件图:

一、管架图

绘制要求:

1.应完整地表达管架的详细结构与尺寸,以提供管架的制造和安装使用。

2.不同种类、结构的种管架应单独绘制在不同的图纸上。

3.表达管架结构的轮廓线以粗实线表示。

4.一般采用A3或A4图幅,比例一般采用1:10或1:20,常采用主视图和俯视图结合表达其详细结构。

5.有明细表、标题栏,必要时,应标注技术要求和施工要求,以及采用的相关标准与规范。

二、管件图

标准管件一般不需要单独绘制图纸,在管道平面布置图编制相应材料表加以说明即可。非标准的特殊管件,应单独绘制详细的结构图,并要求一种管件绘制一张图纸以供制造和安装使用。图面要求和管架图基本相同,在附注中应说明管件所需的数量、安装的位置和所在图号,以及加工制作的技术要求和所采用的相关标准与规范。

管道布置图识读与绘制

本文来源于互联网,暖通南社整理编辑。

相关新闻

  • PPR管

    PE管和PPR管怎么连接,能直接熔接吗?

    1、PE和PPR管怎么连接,直接熔行吗,而且两种管材规格型号是一致的? PPR和PE管不可以热熔连接,要用内牙直接和外牙直接连接。 PE管与PP-R管的壁厚不一样的。两种材质熔接强度达不到要求。 PE引入室内后再与PP-R连接,小管径采用金属转换大管径采用法兰转换。 铸铁管与钢管在室外采用法兰转换,法兰砌井加软接检修更换容易。 PPR管可以热熔连接,不能热熔连接,如果想把它们连接在一起,中间可以加管节来把两个管子连接起来。 正确的连接方法是用法兰进行连接,小口径的管材还可以用带牙配件进行连接,这…

    管道百科 2023年5月10日
  • 管道分类和施工程序有哪些

    管道分类和施工程序有哪些

    1.施工前应具备的开工条件 (1)工程设计图纸及其他技术文件完整齐全,已按程序进行了工程交底和图纸会审。 (2)施工组织设计和施工方案已批准,并已进行了技术和安全交底。 (3)施工人员已按有关规定考核合格。 (4)已办理工程开工手续。 (5)用于管道施工的机械、工器具应安全可靠,计量器具应检定合格并在有效期内。 (6)已制定相应的职业健康安全及环境?;び痹ぐ浮?(一)工业管道安装的施工程序 管道安装工程一般施工程序:施工谁备→测量定位→支架制作安装→管道预制安装→仪表安装→试压清洗→防腐保温→…

    管道百科 2023年4月15日
  • FRP制造

    FRP生产工艺流程

    FRP是Fiber Reinforced Plastics的缩写,是在热固性树脂(环氧树脂、不饱和聚酯树脂等)中混入玻璃纤维、碳纤维等进行强化的成型制品制造工艺。用于需要高强度的摩托艇、住宅建材等大型成型制品。FRP的制造方法中,使用模具的场合很有限,大多数时候是在不使用模具的情况下制造成型制品。 实用化的FRP制造方法有如下几种。 1.团状模塑成型法(BMC) 这一方法是将玻璃纤维短纤维与热固性树脂混合,然后用热固性树脂专用注塑机注塑成型,或用传递模塑机注塑成型??梢栽谙喽越隙痰某尚椭芷谀诮小?/p>

    管道百科 2023年4月6日
  • 涂塑复合钢管分类和型号规格

    涂塑复合钢管分类和型号规格

    按涂覆形式分: 内涂覆钢管;内外涂覆钢管。 根据内涂层材料的不同分为: 聚乙烯涂层钢管;环氧树脂涂层钢管、大口径涂塑钢管内环氧外聚乙烯钢管、内环氧外三层结构聚乙烯钢管。 型号编制 产品型号由产品代号、涂覆材料代号、涂覆形式、公称通径、基管类别等组成。 基管类别:焊接钢管,H;无缝钢管,W。 公称通径 (mm) 涂覆形式:内外涂覆,D;内涂覆:省略不标。 内涂覆材料代号:环氧树脂,EP。 自动喷水灭火系统用涂覆钢管。 示例: ZSPT- EPD/150-H表示基管为焊接钢管、公称通径为DN150 …

    管道百科 2023年4月8日
  • 截止阀和节流阀的分类、安装、应用

    截止阀和节流阀的分类、安装、应用

    截止阀和节流阀: 截止阀和节流阀都是向下闭合式阀门,启闭件(阀瓣)由阀杆带动,沿阀座轴线作升降运动来启闭阀门。 截止阀与节流阀的结构基本相同,只是阀瓣的形状不同:截止阀的阀瓣为盘形,节流阀的阀瓣多为圆锥流线型,特别适用于节流,可以改变通道的截面积,用以调节介质的流量与压力。 截止阀的分类: 节流阀的分类: (1)截止阀和节流阀的阀体: (2)截止阀和节流阀阀瓣 (2)节流阀阀瓣 有针形、沟形和窗形三种形式。当阀瓣在不同高度时,阀瓣与阀座的环形道路面积相应变化,从而得到确定数值的压力或流量。 截止…

    管道百科 2023年5月23日
  • HDPE双壁波纹管的常见口径有哪些

    HDPE双壁波纹管的常见口径有哪些

    市场上管道类型有很多,而每种有着不用的规格型号。那么,hdpe双壁波纹管规格型号有哪些呢? 双壁波纹管使用需要注意什么呢? hdpe双壁波纹管规格型号有哪些 1、 DN300 这种管道的内径是300mm,外径是347mm,而承口深度则是190mm。 2、 DN500 它的内径是500mm,外径是570mm,而承口深度则是240mm。 3、 DN600 它的内径是600mm,外径是685mm,而承口深度是250mm。 4、 DN800 它的内径是800mm,外径是955mm,而承口深度是260mm…

    管道百科 2023年10月21日
联系我们

联系我们

199-8077-7559

 

工作时间:周一至周五,9:00-18:00,节假日休息

微信咨询
微信咨询
返回顶部